Tiberiade (Israel).
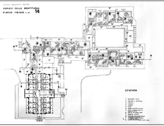
Santuario delle Beatitudini. RESTAURO
Studio Ildo e Carlo Avetta anno 1980-1982
Nel Mondo
Xian
San Salvador
Tiberiade
Progetti Europei
Progetto
del Consolidamento ed ampliamento dell’OSPIZIO